Objektart
Adresse
Objektdaten
Informationen
Ausstattung
Details
Diese besondere, neuwertige 5-Zimmer-Maisonettewohnung sucht neue Mieter und ist ab dem 01.05.2026 bezugsbereit.
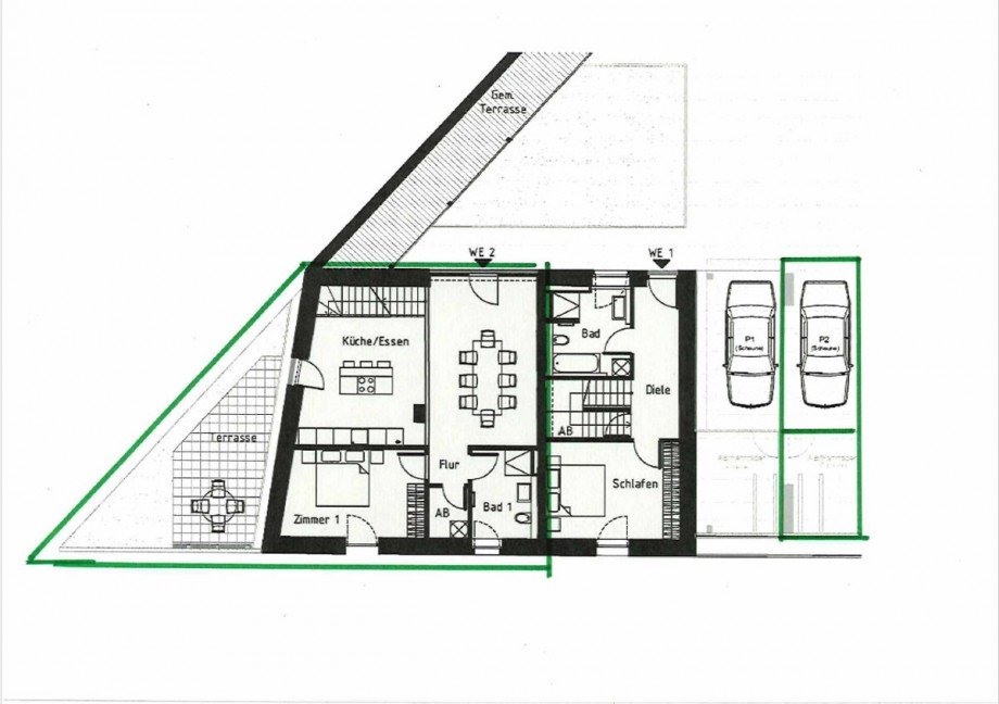
Die Wohnung befindet sich in einer denkmalgeschützten ehemaligen Scheune und ist Teil eines idyllischen ehemaligen Bauernhofensembles. Sie erstreckt sich über 2,5 Ebenen (Erdgeschoss, Zwischenebene und Obergeschoss) und bietet durch ihren Hauscharakter ein außergewöhnliches Wohngefühl.
Der komplette Umbau wurde 2024 abgeschlossen, sodass sich die Wohnung in einem neuwertigen Zustand befindet. Mit einer Wohnfläche von ca. 140 m² stehen großzügige und gut aufgeteilte Räume zur Verfügung. Die Räume sind hell, freundlich und harmonisch gestaltet. Teilweise freigelegte Natursteinwände verleihen der Wohnung ihren besonderen Charme.
Die Wohnung verfügt über 5 Zimmer und 2 Bäder und eignet sich ideal für Paare mit Platzbedarf oder kleinere Familien. Aufgrund der Raumaufteilung sind auch Home-Office-Möglichkeiten problemlos umsetzbar.
Vom Wohnbereich aus gelangen Sie auf die Terrasse mit kleinem Garten. Zusätzlich steht ein Gartenhaus mit Stauraum zur Verfügung. Zur Wohnung gehören ein Carport sowie ein zusätzlicher Stellplatz.
Die Wohnung verfügt über eine großzügige Wohnfläche von ca. 140 m² und ist als 5-Zimmer-Maisonettewohnung über 2,5 Ebenen konzipiert. Durch diese besondere Aufteilung entsteht ein Wohngefühl mit Hauscharakter und klar voneinander getrennten Wohn- und Rückzugsbereichen.
Insgesamt stehen fünf helle und gut geschnittene Zimmer zur Verfügung, die flexibel genutzt werden können, beispielsweise als Wohn- und Schlafräume, Kinderzimmer oder Home-Office. Ergänzt wird das Raumangebot durch zwei moderne Bäder, die den Alltag komfortabel gestalten.
Die gesamte Wohnung ist mit einer Fußbodenheizung ausgestattet, die in allen Räumen für ein angenehmes und gleichmäßiges Raumklima sorgt. Die voll ausgestattete Einbauküche mit Küchenblock ist ein Highlight dieser besonderen Wohnung und lässt keine Wünsche offen. Sie ist mit hochwertigen Elektrogeräten ausgestattet und bietet ausreichend Platz für kulinarische Abenteuer. Die Gestaltung der Innenräume ist modern und harmonisch gehalten. Teilweise freigelegte Natursteinwände setzen besondere Akzente und verleihen der Wohnung ihren individuellen und hochwertigen Charakter.
Vom Wohnbereich aus ist die Terrasse zugänglich, die in den kleinen, privaten Garten übergeht. Zusätzlich steht ein Gartenhaus zur Verfügung, das praktischen Stauraum für Gartengeräte, Fahrräder oder weitere Utensilien bietet.
Zur Wohnung gehören außerdem ein Carport sowie ein zusätzlicher Stellplatz, sodass ausreichend Parkmöglichkeiten vorhanden sind.
Der komplette Ausbau der Wohnung wurde 2024 abgeschlossen, wodurch sich die Immobilie in einem neuwertigen Zustand befindet und modernen Wohnansprüchen in jeder Hinsicht gerecht wird.
Die Wohnung befindet sich in Obergrombach, einem charmanten und traditionsreichen Stadtteil von Bruchsal im Landkreis Karlsruhe. Der Ort liegt landschaftlich reizvoll am Übergang vom Kraichgau zur Oberrheinischen Tiefebene und verbindet ruhiges, naturnahes Wohnen mit einer sehr guten infrastrukturellen Anbindung. Obergrombach ist geprägt von einem gewachsenen Ortskern, historischen Gebäuden und einem dörflichen Charakter, der eine hohe Wohn- und Lebensqualität bietet.
Die Geschichte des Ortes reicht weit zurück und ist bis heute im Ortsbild spürbar. Historische Bauwerke, ehemalige landwirtschaftliche Anwesen sowie denkmalgeschützte Gebäude verleihen Obergrombach seinen besonderen Charme und unterstreichen die Verbundenheit von Tradition und modernem Wohnen.
Die Verkehrsanbindung ist sowohl für den Individual- als auch für den öffentlichen Verkehr sehr gut. Über regionale Busverbindungen besteht eine Anbindung an die Bruchsaler Innenstadt sowie an den Bahnhof Bruchsal. Von dort aus bestehen regelmäßige Zugverbindungen unter anderem in Richtung Karlsruhe, Heidelberg und Mannheim. Mit dem Auto sind die Autobahnen A5, A6 und A8 in kurzer Zeit erreichbar, wodurch eine hervorragende Anbindung an das überregionale Verkehrsnetz gegeben ist. Die nächstgrößeren Städte Karlsruhe und Bruchsal sind schnell erreichbar und machen die Lage besonders attraktiv für Berufspendler.
Einkaufsmöglichkeiten für den täglichen Bedarf, Bäckereien, gastronomische Angebote sowie weitere Dienstleister befinden sich sowohl im Ort selbst als auch in den angrenzenden Stadtteilen. Das umfassende Einkaufs-, Ärzte- und Freizeitangebot der Bruchsaler Innenstadt ergänzt die Nahversorgung ideal.
Die Umgebung lädt mit ihren Feldern, Weinbergen und Spazierwegen zu vielfältigen Freizeit- und Erholungsmöglichkeiten ein. Obergrombach vereint somit ruhiges Wohnen im Grünen mit einer guten Anbindung an urbane Zentren und bietet ideale Voraussetzungen für ein angenehmes und entspanntes Wohnen.
Alle Angaben sind ohne Gewähr und basieren ausschließlich auf den Angaben, die uns von dem Auftraggeber zur Verfügung gestellt wurden. Wir übernehmen keine Gewähr für die Vollständigkeit, Richtigkeit und Aktualität dieser Angaben. Irrtum und Zwischenverkauf bleiben vorbehalten. Dieses Exposé ist eine Vorabinformation, als Rechtsgrundlage gilt allein der notariell abgeschlossene Kaufvertrag.
Dieses Exposé wurde mit größter Sorgfalt erstellt, jedoch übernehmen wir keine Gewähr für die Richtigkeit der Angaben. Die enthaltenen Renderings dienen der Illustration und können von der tatsächlichen Ausführung abweichen.
Es gelten die angehängten Geschäftsbedingungen, die Sie sich auch von unserer Homepage unter: https://www.dammert.de/AGB.htm entnehmen können.
Einzelne Bilder sind grafische erstellt worden,
Ihre Immobiliensuche
Gerne unterstützen wir Sie aktiv bei Ihrer Immobiliensuche. Unter folgendem Link auf unserer Internetseite: www.dammert.de/Interessentenkartei.htm haben Sie die Möglichkeit, Ihr Suchprofil - Ihren Immobilienwunsch - anzugeben. Sobald wir eine passende Immobilie anbieten können, melden wir uns umgehend bei Ihnen.
Ich bin damit einverstanden, dass mir Karten von Google angezeigt werden. Es gelten die Datenschutzbedingungen von Google (https://policies.google.com/privacy).
Ich bin einverstanden