Objektart
Adresse
Objektdaten
Ausstattung
Details
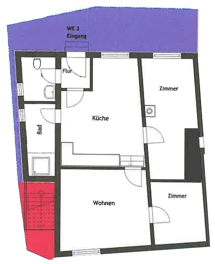
Die angebotene Erdgeschosswohnung verfügt über eine Wohnfläche von ca. 73 m² und überzeugt durch eine praktische Raumaufteilung sowie eine angenehme Wohnatmosphäre.
Herzstück der Wohnung ist die geräumige Wohnküche, die ausreichend Platz für eine Küchenzeile sowie einen Essbereich bietet und somit zum zentralen Treffpunkt des Alltags wird. Von hier aus sind zwei weitere Zimmer direkt erreichbar, die sich flexibel beispielsweise als Schlaf-, Kinder- oder Arbeitszimmer nutzen lassen. Ein weiteres Zimmer ist vom Wohnzimmer aus zugänglich und ergänzt die vielseitigen Nutzungsmöglichkeiten der Wohnung.
Das Tageslichtbadezimmer ist komfortabel ausgestattet und verfügt sowohl über eine Dusche als auch über eine Eckbadewanne. Zusätzlich steht eine separate Toilette zur Verfügung, was den Wohnkomfort im Alltag erhöht.
Vor dem Haus befindet sich eine kleine Terrasse mit Sichtschutz, die sich ideal für entspannte Stunden im Freien eignet und einen geschützten Außenbereich bietet.
Insgesamt eignet sich die Wohnung sowohl für Paare, kleine Familien als auch für Kapitalanleger, die eine gut geschnittene Immobilie mit praktischer Raumaufteilung suchen.
- Laminat- und Fliesenböden
- Tageslichtbadezimmer mit Eckwanne und Dusche
- separates WC
- offene Wohnküche
- drei weitere Zimmer
- Veranda vor dem Haus
Die Wohnung befindet sich in Obertsrot, einem charmanten Ortsteil von Gernsbach im idyllischen Murgtal des nördlichen Schwarzwalds. Obertsrot besticht durch seine ruhige, naturnahe Lage und bietet eine harmonische Kombination aus ländlichem Flair und guter Infrastruktur. Die Umgebung ist geprägt von gepflegten Einfamilienhäusern, kleinen Mehrfamilienhäusern und großzügigen Grünflächen, die viel Privatsphäre und Erholung ermöglichen.
Trotz der ruhigen Lage profitieren die Bewohner von einer guten Anbindung an die Innenstadt von Gernsbach: Dort finden sich Einkaufsmöglichkeiten, Schulen, Ärzte, Apotheken sowie zahlreiche Freizeit- und Kulturangebote. Über die Bundesstraße 462 ist eine schnelle Verbindung gewährleistet:
Baden-Baden: ca. 11 km, ca. 15-20 Minuten Fahrzeit
Rastatt: ca. 19 km, ca. 16-20 Minuten Fahrzeit
Karlsruhe: ca. 37 km, ca. 25-30 Minuten Fahrzeit
Straßburg (Frankreich): ca. 77 km Fahrdistanz
Auch öffentliche Verkehrsmittel verbinden Obertsrot regelmäßig mit der Kernstadt und dem Murgtal.
In Bezug auf Bildung und Betreuung ist Obertsrot gut aufgestellt:
In Obertsrot selbst befindet sich das Krippenhaus "Krippenhaus Pusteblume" - eine Einrichtung für Kinder im Alter von 1-3 Jahren mit ganztägiger Betreuung.
Weitere Kinderbetreuungsangebote, Kindertagesstätten und Schulen befinden sich in Gernsbach und sind gut erreichbar.
Obertsrot selbst bietet zahlreiche Freizeitmöglichkeiten in direkter Umgebung: Wander- und Radwege durch die Schwarzwaldhänge, Ausblicke ins Murgtal sowie Naherholungsgebiete sorgen für ein hohes Wohn- und Lebensgefühl. Gleichzeitig bleibt das dörfliche Gemeinschaftsleben mit Vereinen und lokalen Veranstaltungen erhalten, was Obertsrot zu einem besonders attraktiven Wohnort macht.
Die Lage verbindet somit Natur, Ruhe und Privatsphäre mit komfortabler Infrastruktur, guter Verkehrsanbindung und einer soliden Bildungs- und Betreuungsstruktur - ideal für Familien, Paare oder alle, die eine harmonische Wohnatmosphäre suchen.
Wir arbeiten bei diesem Objekt ausschließlich auf Basis eines Erfolgshonorars, das sich wie folgt zusammensetzt: Der Käufer zahlt im Erfolgsfall an die Firma Dammert Immobilien eine Maklerprovision in Höhe von 3,57 % inkl. der gesetzl. Mehrwertsteuer der Kaufsumme. Die Firma Dammert Immobilien hat einen provisionspflichtigen Maklervertrag mit dem Verkäufer in gleicher Höhe abgeschlossen. Die Provision ist fällig bei notarieller Beurkundung des Kaufobjektes.
Alle Angaben sind ohne Gewähr und basieren ausschließlich auf den Angaben, die uns von dem Auftraggeber zur Verfügung gestellt wurden. Wir übernehmen keine Gewähr für die Vollständigkeit, Richtigkeit und Aktualität dieser Angaben. Irrtum und Zwischenverkauf bleiben vorbehalten. Dieses Exposé ist eine Vorabinformation, als Rechtsgrundlage gilt allein der notariell abgeschlossene Kaufvertrag.
Es gelten die angehängten Geschäftsbedingungen, die Sie sich auch von unserer Homepage unter: https://www.dammert.de/AGB.htm entnehmen können.
Ihre Immobiliensuche
Gerne unterstützen wir Sie aktiv bei Ihrer Immobiliensuche. Unter folgendem Link auf unserer Internetseite: www.dammert.de/Interessentenkartei.htm haben Sie die Möglichkeit, Ihr Suchprofil - Ihren Immobilienwunsch - anzugeben. Sobald wir eine passende Immobilie anbieten können, melden wir uns umgehend bei Ihnen.
Kostenlose Wertermittlung
Unser Service für Sie als Eigentümer: Wir erstellen eine kostenfreie Marktindikation Ihre Immobilie entsprechend dem aktuellen Marktwert, entwickeln eine Ihrem Objekt angepasste Verkaufsstrategie und stehen Ihnen bis zur erfolgreichen Vermittlung zur Verfügung.
Energieausweis (Bedarfsausweis)
150,53 kWh / (m²*a) Endenergiebedarf
150,53 kWh / (m²*a) Endenergiebedarf
150,53 kWh / (m²*a) Endenergiebedarf
Weitere Informationen
| Wesentlicher Energieträger | Erdgas leicht |
| Energieausweis gültig bis | 2035-04-23 |
| Energieausweis Jahrgang | ab dem 1.5.2014 |
| Energieausweis Werteklasse | E |
| Energieausweis Baujahr | 1960 |
| Energieausweis Gebäudeart | Wohngebäude |
| Heizung | Zentralheizung |
| Befeuerung | Gas |
Ich bin damit einverstanden, dass mir Karten von Google angezeigt werden. Es gelten die Datenschutzbedingungen von Google (https://policies.google.com/privacy).
Ich bin einverstanden