Altersgerechter Neubau mitten in Bruchsal!Zweizimmerwohnung mit West-Balkon
Objektart
Adresse
Objektdaten
Informationen
Ausstattung
Details
Diese moderne und lichtdurchflutete Wohnung wird ab Ende 2026 in zentraler und dennoch ruhiger Lage von Bruchsal verfügbar sein. Der Baubeginn des Gebäudes ist für das Frühjahr 2025 geplant, was Ihnen die Möglichkeit gibt, Ihre persönlichen Wünsche und Vorstellungen in den Bauprozess einfließen zu lassen.
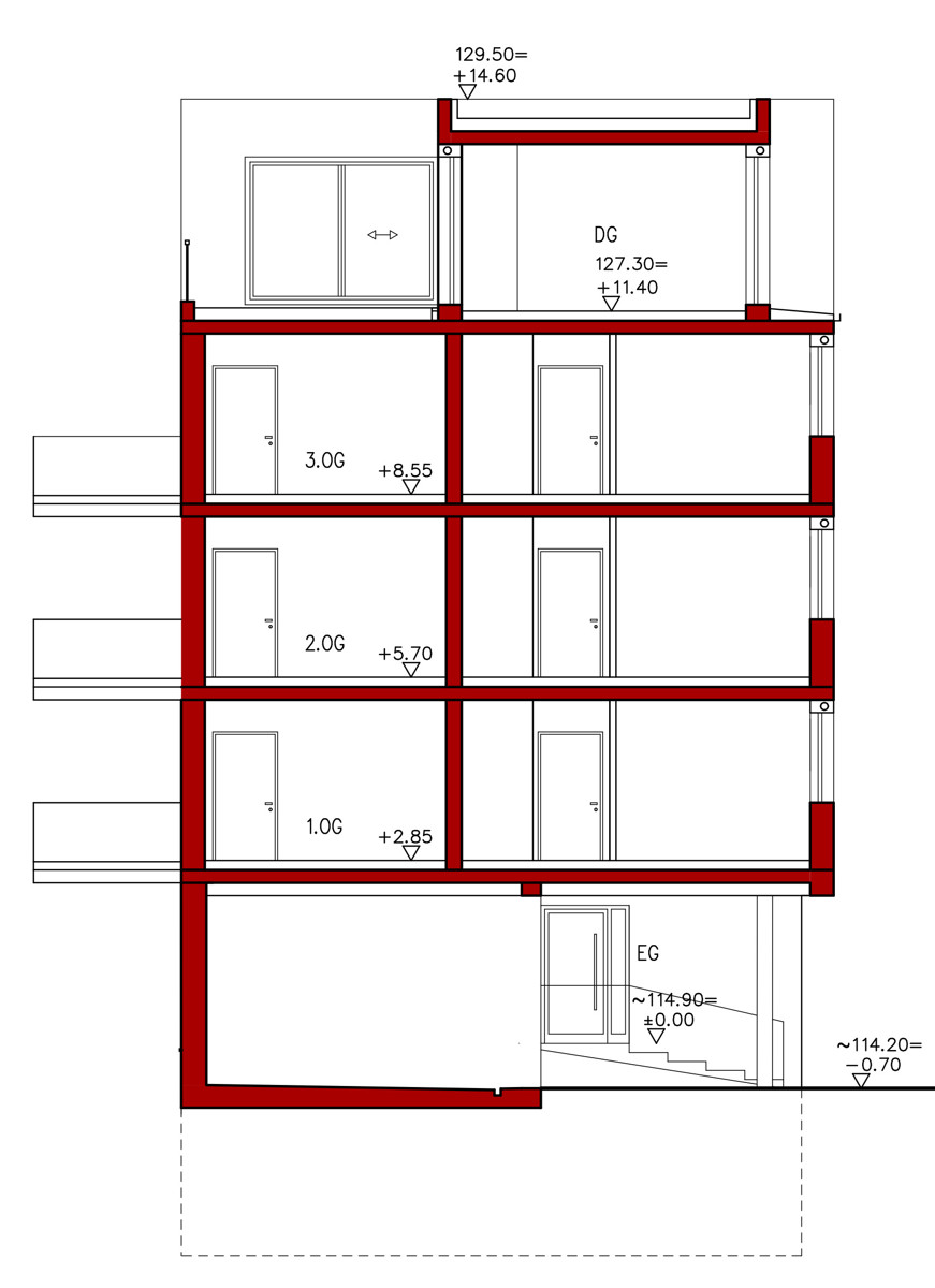
Das fertige Gebäude wird insgesamt zehn Wohnungen umfassen. Im Erdgeschoss befinden sich neben einer Zweizimmerwohnung auch drei Pkw-Stellplätze. Zusätzlich werden in einem separaten Garagengebäude an der hinteren Grundstücksgrenze drei Doppelparker errichtet. Vor dem Gebäude stehen drei Freiplätze zur Verfügung. Für die Bewohner dieses Hauses wird die lästige Parkplatzsuche somit ein Ende haben. Im Erdgeschoss befindet sich zudem ein ebenerdig zugänglicher Fahrradraum.
Auf den fünf Wohnebenen sind insgesamt zehn Wohnungen geschaffen.
Die hier angebotene, nach Westen ausgerichtete Wohnung im zweiten Obergeschoss hat eine Wohnfläche von ca. 63,22 m² sowie zusätzlich einen Balkon. Die Aufteilung bietet ein geräumiges Wohnzimmer mit integrierter Küche und Zugang zum Balkon, ein Tageslichtbadezimmer mit Badewanne und Dusche sowie ein großer Schlafraum mit Zugang zum Balkon. Ein praktischer Abstellraum in der zentralen Diele rundet das Raumangebot ab.
Alle Etagen sind bequem über das zentrale Treppenhaus und den Personenaufzug erreichbar.
Das Gebäude wird nach dem Baustandard EH 55 errichtet, d.h. es wird nur 55 % der Energie eines vergleichbaren Niedrigenergiehauses verbrauchen. Dieses wird durch die Bauweise und die Luft-Wasser-Wärmepumpe mit Fußbodenheizung erreicht.
Weitere Infos gibt es im schriftlichen Exposé.
Wir freuen uns auf Ihre Anfrage!
Bauwerk:
oAußenwände: 17,5 cm Kalksandstein mit Wärmedämmverbundsystem
oInnenwände: Kalksandstein und GK-Ständerwände
oRegenrinne und -fallrohre aus Titanzink
oLuft-Waser-Wärmepumpe, inkl. Warmwasseraufbereitung
okontrollierte Abluftanlage in den Badezimmern
oWasserleitungen aus Kunststoff
oPersonenaufzug
oFlachdach mit Wärmedämmung
oPV-Anlage (Einspeisung ins öffentliche Netz, Vergütung zu Gunsten der WEG)
oDie Bauweise eignet sich perfekt für altersgerechtes Wohnen
Innenausstattung:
oFußbodenheizung in allen Räumen
oBadezimmer mit hochwertiger Ausstattung
obodentiefe Dusche
oHandtucheizkörper in den Badezimmern
ogeflieste Wände in den Nassräumen, ansonsten Raufasertapete
odreifachverglaste Fenster in Kunststoffrahmen
oelektrische Rollläden an allen Fenstern
oLAN- und TV-Anschlüsse in den Wohn-, Schlaf- und Kinderzimmern
ojeweils ein Abstellraum im Keller
Etwaige Änderungs- bzw. Ausstattungswünsche der neuen Eigentümer nehmen wir gerne an. Zum Beispiel die Fußbodenbeläge, Fließen oder zusätzliche Wände, vieles ist sofort umsetzbar. Hier kann Ihr Wohntraum realisiert werden.
Die angebotene Wohnung wird sich in einer ruhigen und dennoch zentralen Lage in Bruchsal befinden. Einkaufsmöglichkeiten, Ärzte, Apotheken sind in nur wenigen Minuten zu Fuß erreichbar. Die Fußgängerzone ist in ca. 5 Gehminuten zu erreichen und verfügt über viele verschiedene Einkaufsmöglichkeiten.
Die Stadt Bruchsal liegt geographisch zwischen der Rheinebene und dem Kraichgau. Durch diese schöne Lage bietet sie Einwohnern wie Besuchern das ganze Jahr über ein angenehmes Klima und macht die Region zu einer Gegend von hoher Lebensqualität. Heimischer Wein und Spargel sind nur einige Genüsse dieser bevorzugten Umgebung.
Bruchsal gliedert sich zum einen in die Kernstadt und zum anderen in die nicht weit davon entfernten fünf Stadtteile: Büchenau, Heidelsheim, Helmsheim, Obergrombach und Untergrombach.
Sie alle können nicht nur mit historischen Sehenswürdigkeiten wie dem Barockschloss, einer Wallfahrtskirche und mittelalterlichen Stadttürmen aufwarten. Ebenso stehen zahlreiche Bildungseinrichtungen für Kinder und Jugendliche zur Verfügung, Senioren wird ein lebendiges Stadtleben angeboten und als Wirtschafsstandort ist Bruchsal ebenfalls anerkannt.
Ob mit dem Zug (InterRegio, IC, ICE), Auto (BAB 5, B3, B 35) oder Flugzeug (die internationalen Flughäfen Frankfurt, Stuttgart und Straßburg sind jeweils eine Stunde, der regionale Baden Airport in etwa einer halben Stunde erreichbar) sowie dem öffentlichen Nahverkehr (Stadtbahnanschluss nach Karlsruhe), Bruchsal ist verkehrstechnisch ideal gelegen!
In Bruchsal gibt es insgesamt drei Gymnasien, eine Realschule sowie ein Technisches und Wirtschaftsgymnasium. Für die Kleineren gibt es in der Kernstadt vier Grundschulen.
Es gelten die angehängten Geschäftsbedingungen, die Sie sich auch von unserer Homepage unter: https://www.dammert.de/AGB.htm entnehmen können.
Alle Angaben sind ohne Gewähr und basieren ausschließlich auf den Angaben, die uns von dem Auftraggeber zur Verfügung gestellt wurden. Wir übernehmen keine Gewähr für die Vollständigkeit, Richtigkeit und Aktualität dieser Angaben. Irrtum und Zwischenverkauf bleiben vorbehalten. Dieses Exposé ist eine Vorabinformation, als Rechtsgrundlage gilt allein der notariell abgeschlossene Kaufvertrag.
Ihre Immobiliensuche
Gerne unterstützen wir Sie aktiv bei Ihrer Immobiliensuche. Unter folgendem Link auf unserer Internetseite: www.dammert.de/Interessentenkartei.htm haben Sie die Möglichkeit, Ihr Suchprofil - Ihren Immobilienwunsch - anzugeben. Sobald wir eine passende Immobilie anbieten können, melden wir uns umgehend bei Ihnen.
Kostenlose Wertermittlung
Unser Service für Sie als Eigentümer: Wir erstellen eine kostenfreie Marktindikation Ihre Immobilie entsprechend dem aktuellen Marktwert, entwickeln eine Ihrem Objekt angepasste Verkaufsstrategie und stehen Ihnen bis zur erfolgreichen Vermittlung zur Verfügung.
Ich bin damit einverstanden, dass mir Karten von Google angezeigt werden. Es gelten die Datenschutzbedingungen von Google (https://policies.google.com/privacy).
Ich bin einverstanden